Chatham County, NC Custom Home Builder
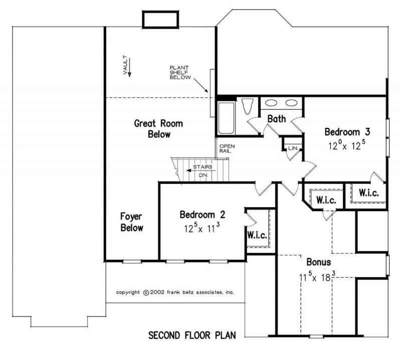
2628 sq ft | 3 - 4 Beds | 3 Baths | Main Floor Master


*Plans are illustrative and may reflect optional features. Floor plans and renderings are copyright Frank Betz & Associates.
New homes on our lots in Fox Oak and other Pittsboro locations or your lot i custom home communities and countryside homesites across Chatham County and surrounding regions extending into Alamance, Durham, Harnett, Johnston, Lee, Moore, Orange, Randolph and Wake counties.
Chatham County, North Carolina
919.812.3154
info@travarsbuilthomes.com
Contact us to get started on your new custom home.
Monday-Friday: 8am to 4pm